Verkocht:Beukendreef 123, 5061 AC Oisterwijk - Foto
Verkocht
+44

Beukendreef 123 5061 AC Oisterwijk

  • Woonhuis
  • 4 kamers
  • 3 slaapkamers
  • 1 badkamers
  • Bouwjaar 1970
  • 137 m² perceeloppervlakte
  • 103 m² gebruiksoppervlakte
  • B Energielabel B

Beschrijving

Beukendreef 123: ruim, licht en heerlijk wonen in Oisterwijk

Aan de rustige Beukendreef, op korte afstand van het gezellige centrum van Oisterwijk, staat deze leuke tussenwoning met energielabel B. De woning beschikt over een lichte doorzonwoonkamer, moderne keuken, drie slaapkamers, een badkamer met ligbad en douche en een zonnige tuin op het zuiden met achterom. Een ideale plek voor starters, jonge gezinnen of iedereen die op zoek is naar een comfortabel huis op een fijne locatie.

Indeling

Je betreedt de woning via de ruime entree met meterkast, garderobe en toegang tot de woonkamer. De doorzonwoonkamer is verrassend ruim dankzij de grote ramen aan zowel de voor- als achterzijde, waardoor er volop natuurlijk licht binnenvalt. De ruimte is makkelijk in te delen met een gezellige zithoek aan de voorzijde en een eethoek richting de tuin. Via de woonkamer bereik je de hal met trapopgang naar de eerste verdieping en het toilet.

Aan de achterzijde bevindt zich de open keuken, voorzien van alle gemakken: een gaskookplaat, oven, koelkast, vaatwasser en voldoende kastruimte. Vanuit de keuken is er direct toegang tot de achtertuin.

Eerste verdieping

Op de eerste verdieping bevinden zich twee ruime slaapkamers en de badkamer. De slaapkamers zijn licht en praktisch ingedeeld, met voldoende plek voor een tweepersoonsbed en kastruimte. De badkamer is compleet uitgerust met een ligbad met douche, toilet en wastafel: alles wat je nodig hebt op één plek.

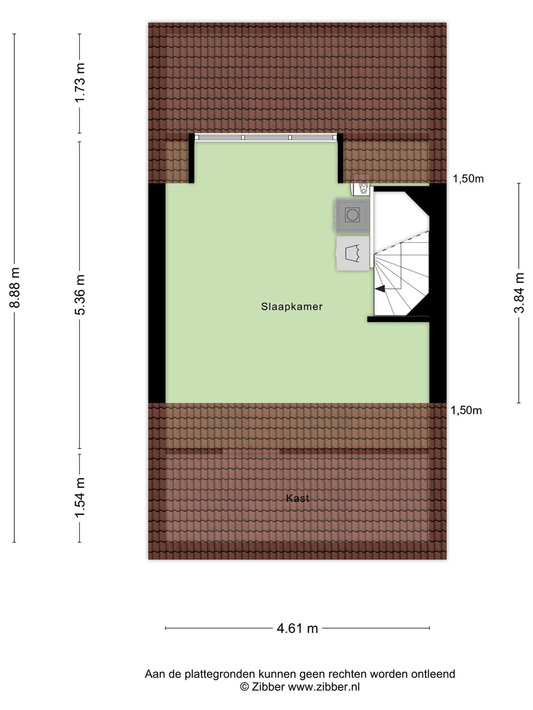
Tweede verdieping

Via de vaste trap bereik je de tweede verdieping. Hier vind je de derde slaapkamer met dakkapel, wat zorgt voor extra ruimte en licht. Daarnaast is er nog plaats voor de wasmachine en droger, plus extra bergruimte onder de schuine kanten van het dak.

Tuin

De woning beschikt over een toepasselijke voor- en achtertuin. De achtertuin is gesitueerd op het zuiden, waardoor je de hele dag kunt genieten van de zon. De tuin is bereikbaar via een achterom en beschikt over een vrijstaande stenen berging, ideaal voor fietsen, capaciteit voor één auto, gereedschap of opslag.

Bijzonderheden

Locatie
De Beukendreef ligt in een rustige, groene en kindvriendelijke woonwijk op korte afstand van het charmante centrum van Oisterwijk. Deze geliefde plaats staat bekend als de Parel in ’t Groen: een dorp waar natuur, gezelligheid en kwaliteit van wonen samenkomen. Binnen enkele minuten fiets je naar het levendige centrum met sfeervolle terrassen, boetieks en restaurants. Ook dagelijkse voorzieningen zoals supermarkten, scholen en sportverenigingen liggen op loop- of fietsafstand.
Voor natuurliefhebbers ligt de prachtige omgeving letterlijk om de hoek: wandel of fiets zo richting de Oisterwijkse Bossen en Vennen, een uniek natuurgebied met bossen, waterpartijen en talloze wandelroutes. Bovendien zijn zowel Tilburg als ’s-Hertogenbosch snel bereikbaar via de N65 of het treinstation van Oisterwijk, waardoor je het beste van rust en bereikbaarheid ervaart.
Hier woon je in een prettige, kindvriendelijke omgeving met volop groen, waar je echt kunt genieten van het Brabantse buitenleven.

Algemeen:
• Energielabel B
• Kozijnen grotendeels kunststof, deels hout
• Doorzonwoonkamer met veel lichtinval
• Praktische, open keuken met inbouwapparatuur
• Badkamer met ligbad, douche, toilet en wastafel
• Drie volwaardige slaapkamers
• Vrijstaande stenen berging, met grote garagedeur
• Achtertuin op het zuiden met achterom
• Gelegen in rustige, kindvriendelijke buurt nabij centrum en voorzieningen
Deze woning aan de Beukendreef biedt alles wat je nodig hebt voor comfortabel wonen in het prachtige Oisterwijk: ruim, licht en met een zonnige tuin waar je het hele jaar door kunt genieten.

Deze informatie is door ons met de nodige zorgvuldigheid samengesteld. Onzerzijds wordt echter geen enkele aansprakelijkheid aanvaard voor enige onvolledigheid, onjuistheid of anderszins, dan wel de gevolgen daarvan. Koper heeft een onderzoeksplicht.

Kaart

Kenmerken

Overdracht

Referentienummer
00014
Vraagprijs
€ 395.000,- k.k.
Inrichting
Niet gestoffeerd
Inrichting
Niet gemeubileerd
Status
Verkocht
Aanvaarding
In overleg
Aangeboden sinds
Donderdag 6 november 2025
Laatste wijziging
Woensdag 26 november 2025

Bouw

Type object
Woonhuis, eengezinswoning, tussenwoning
Soort bouw
Bestaande bouw
Bouwperiode
1970
Dakbedekking
Dakpannen
Type dak
Zadeldak
Isolatievormen
Dakisolatie
Grotendeels dubbel glas

Oppervlaktes en inhoud

Perceeloppervlakte
137 m²
Woonoppervlakte
102,9 m²
Inhoud
364 m³
Oppervlakte externe bergruimte
21,1 m²

Indeling

Aantal bouwlagen
3
Aantal kamers
4 (waarvan 3 slaapkamers)
Aantal badkamers
1 (en 1 apart toilet)

Locatie

Ligging
Aan rustige weg
Dichtbij openbaar vervoer
In bosrijke omgeving
In woonwijk
Nabij school
Nabij snelweg

Tuin

Type
Achtertuin
Hoofdtuin
Ja
Oriëntering
Zuiden
Tuin 2 - Type
Voortuin

Energieverbruik

Energielabel
B
Energie-index
1,3

CV ketel

Warmtebron
Gas
Eigendom
Eigendom

Uitrusting

Aantal parkeerplaatsen
1
Aantal overdekte parkeerplaatsen
1
Warm water
CV-ketel
Verwarmingssysteem
Centrale verwarming
Vloerverwarming (gedeeltelijk)
Badkamervoorzieningen
Douche
Ligbad
Toilet
Wastafel
Parkeergelegenheid
Vrijstaande stenen garage
Tuin aanwezig
Ja
Heeft een garage
Ja

Kadastrale gegevens

Kadastrale aanduiding
Oisterwijk A 2971
Perceeloppervlakte
137 m²
Eigendomsituatie
Eigen grond

Brochure(s) en overige bijlagen

Brochure - Dorps wonen - Beukendreef 123 - Oisterwijk.pdf Download