Nieuw in verkoop:Ontginningsweg 13, 5089 NR Haghorst - Foto
Nieuw in verkoop
+48

Ontginningsweg 13 5089 NR Haghorst € 680.000,- k.k.

  • Woonhuis
  • 5 kamers
  • 4 slaapkamers
  • 1 badkamer
  • Bouwjaar 1956
  • 1.115 m² perceeloppervlakte
  • 114 m² gebruiksoppervlakte
  • F Energielabel F

Beschrijving

Vrijstaand wonen met ruimte, rust en mogelijkheden aan de rand van Haghorst

Aan de rustige rand van Haghorst, op een fraaie landelijke locatie, treft u deze vrijstaande woning met royale loods en vrij uitzicht over de omliggende landerijen en bosgebied ‘Het Stuk’. Een plek waar rust en ruimte samenkomen, met volop mogelijkheden voor de koper die kansen ziet.
De woning, gebouwd in 1956, vraagt om aandacht en modernisering, maar biedt een uitstekende basis om geheel naar eigen wens te worden ingericht. Met een woonoppervlakte van circa 113,6 m² en de mogelijkheid om (binnen de geldende kaders) uit te bouwen tot maar liefst circa 750 m³ buitenwerks, is hier een toekomstbestendig woonhuis te realiseren. Laat u hierbij goed adviseren door een deskundige op het gebied van ruimtelijke ordening.
De in 2005 gebouwde loods van circa 145,7 m² verkeert daarentegen in uitstekende staat en biedt tal van gebruiksmogelijkheden. Denk aan opslag, hobbyruimte of wellicht, voor de creatieve koper, een alternatieve invulling zoals het transformeren naar woonruimte (onder voorbehoud van vergunningen). Tevens biedt de loods een geweldige mogelijkheid in het uitoefenen van een beroep of bedrijf aan huis (wederom binnen de geldende kaders). Laat u ook hier goed adviseren door een deskundige op het gebied van ruimtelijke ordening.

Kom binnen…
Via de entree betreedt u de hal, die toegang biedt tot de keuken, een slaapkamer op de begane grond en de trapopgang naar de eerste verdieping. De keuken is eenvoudig uitgevoerd en voorzien van een vaatwasser, 4-pits gaskookplaat met afzuigkap en biedt tevens toegang tot de praktische kelderruimte voor extra opslag.
Vanuit de keuken bereikt u de lichte doorzonwoonkamer met eethoek, waar grote raampartijen zorgen voor een prettige lichtinval en een mooi zicht op de omgeving. De woonkamer beschikt over een opstelling voor een kachel, wat bijdraagt aan een warme en gezellige sfeer.
Aan de andere kant van de woning bevindt zich de bijkeuken, met toegang tot het separate toilet, de badkamer met vloerverwarming (vernieuwd in 2014) en de achterdeur naar de tuin. Hier geniet u van volledige privacy en een prachtig vrij uitzicht over het buitengebied.

Kom verder…
Op de eerste verdieping geeft de overloop toegang tot drie slaapkamers. Daarnaast zijn er diverse praktische berg- en inbouwkasten aanwezig. De verdieping is volledig voorzien van vloerbedekking en biedt voldoende ruimte voor een gezin of het creëren van een werk- of hobbykamer.

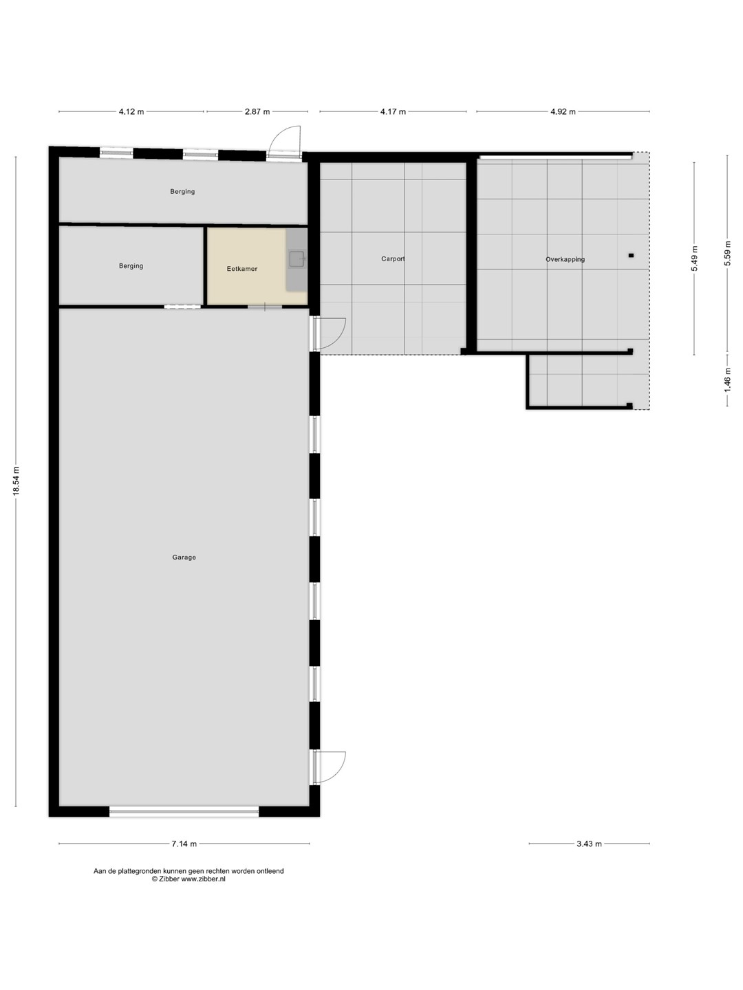
De loods
De ruime loods is een groot pluspunt van dit object. Deze is degelijk gebouwd, voorzien van dak- en muurisolatie, uitgerust met een elektrische roldeur en heeft een doorrijhoogte van 4 meter. Aangrenzend vindt u een carport en overkapping, wat het geheel extra functioneel maakt.

De indeling van de loods is flexibel: een binnenmuur kan eenvoudig worden verwijderd of juist worden toegevoegd, afhankelijk van uw wensen. Dit maakt de ruimte geschikt voor uiteenlopende doeleinden.

De tuin en het perceel
Het perceel van ca. 1.115 m² biedt volop ruimte rondom de woning en loods, met zowel een voortuin als een vrij gelegen achtertuin. De achtertuin is deels betegeld en biedt daarmee goede mogelijkheden voor het realiseren van een terras, met een weids uitzicht over de omliggende landerijen.
Algemeen:
• Vrijstaande woning met loods op landelijke locatie;
• Perceeloppervlakte ca. 1.115 m²;
• Woonoppervlakte ca. 113,6 m²;
• Loods ca. 132,4 m² (bouwjaar 2005);
• Met carport en overkapping aan de loods
• Woning bouwjaar 1956;
• Twee woonlagen met slaapkamer op de begane grond;
• Badkamer vernieuwd in 2014;
• Woning dient gemoderniseerd te worden;
• Uitbreidingsmogelijkheden tot ca. 750 m³ (indicatief);
• Energielabel F.

Op het geheel rust de volgende bestemming:
Buitengebied
Bestemmingsplan Gemeente Hilvarenbeek
Vastgesteld 13-03-2014 geheel onherroepelijk in werking
Bestemmingsvlakken: Wonen en Waarde – Archeologie 2
Daarmee laat het bestemmingsplan toe om er prive 24/7 te kunnen wonen, met een eventueel beroep- of bedrijf aan huis, zoals opgenomen in de bijlage van het bestemmingplan. Een ideale locatie voor diegene die privé en werk wil combineren.

Haghorst
Haghorst is een sfeervol en landelijk gelegen dorp binnen de gemeente Hilvarenbeek, waar rust, ruimte en een hechte gemeenschap centraal staan. De omgeving kenmerkt zich door het groene buitengebied, uitgestrekte landerijen en diverse natuurgebieden op korte afstand.
Tegelijkertijd staat Haghorst niet stil. Met de ontwikkeling van het project Hart van Haghorst krijgt het dorp de komende jaren een duidelijke kwaliteitsimpuls. In dit plan worden onder andere nieuwe woningen gerealiseerd en komt er een multifunctionele accommodatie met een basisschool, kinderopvang, gymzaal en dorpshuis met horeca.
Hiermee ontstaat een nieuw, levendig dorpshart dat bijdraagt aan de leefbaarheid en toekomstbestendigheid van het dorp. De eerste ontwikkelingen zijn al in gang gezet en de komende jaren wordt dit gebied verder uitgebouwd.
Daarnaast zijn uitvalswegen richting Tilburg en Eindhoven goed bereikbaar, waardoor u profiteert van de rust van het buitengebied zonder in te leveren op bereikbaarheid.

Kaart

Kenmerken

Overdracht

Referentienummer
00021
Vraagprijs
€ 680.000,- k.k.
Status
Nieuw in verkoop
Aanvaarding
In overleg
Aangeboden sinds
Donderdag 2 april 2026

Bouw

Type object
Woonhuis, eengezinswoning, vrijstaande woning
Soort bouw
Bestaande bouw
Bouwperiode
1956
Isolatievormen
Grotendeels dubbel glas

Oppervlaktes en inhoud

Perceeloppervlakte
1.115 m²
Woonoppervlakte
113,6 m²
Inhoud
441 m³
Oppervlakte overige inpandige ruimten
5,3 m²
Oppervlakte externe bergruimte
145,7 m²

Indeling

Aantal bouwlagen
2
Aantal kamers
5 (waarvan 4 slaapkamers)
Aantal badkamers
1 (en 1 apart toilet)

Tuin

Type
Achtertuin
Hoofdtuin
Ja
Oriëntering
Noorden
Staat
Normaal
Tuin 2 - Type
Voortuin
Tuin 2 - Oriëntering
Zuiden
Tuin 2 - Staat
Normaal

Energieverbruik

Energielabel
F
Energie-index
2,21

CV ketel

Warmtebron
Gas
Eigendom
Eigendom

Uitrusting

Warm water
CV-ketel
Verwarmingssysteem
Centrale verwarming
Open haard
Vloerverwarming (gedeeltelijk)
Heeft een open haard
Ja
Tuin aanwezig
Ja
Heeft rolluiken
Ja
Heeft schuur/berging
Ja