Verkocht onder voorbehoud:Radioweg 14, 5827 BE Vortum-Mullem - Foto
Verkocht onder voorbehoud
+62

Radioweg 14 5827 BE Vortum-Mullem

  • Maatschappelijk vastgoed
  • Bouwjaar 1923
  • 16.376 m² perceeloppervlakte
  • 240 m² vloeroppervlakte
  • D Energielabel D

Beschrijving

Bent u op zoek naar:
* een locatie voor dagbesteding voor 15 tot 25 personen;
* een locatie waar u 12 zorgappartementen kan realiseren;
* een locatie waar u tot 14 paarden kunt houden;
* waar 20 camperplaatsen zijn?

Dan hebben wij de ideale locatie:
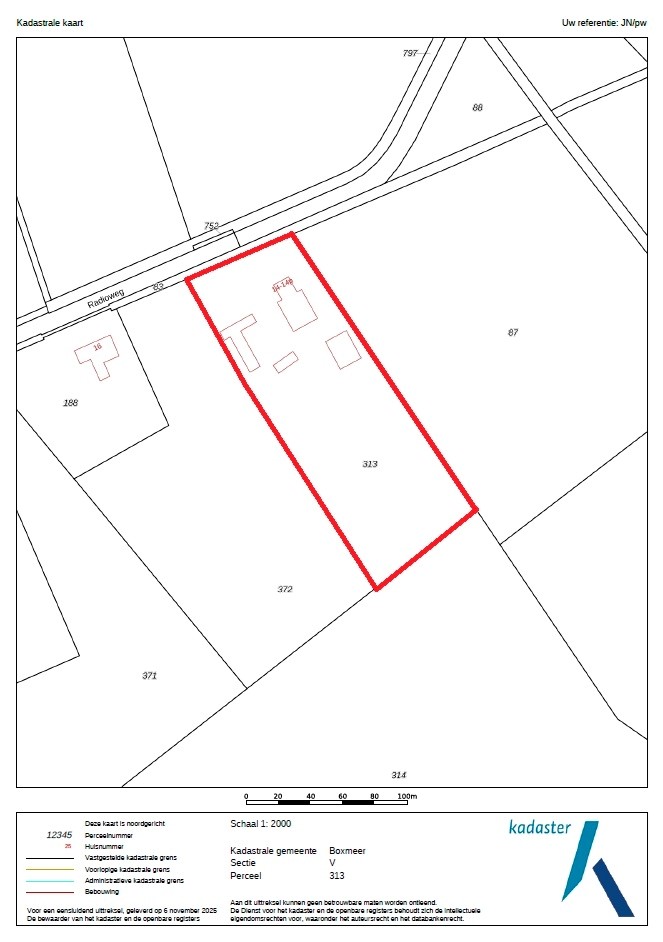
Karakteristieke woonboerderij “Brakkenhof”, gelegen aan de Radioweg 14 te Vortum-Mullem, in het buitengebied van de gemeente Land van Cuijk, op een perceel van 1.63.76 hectare.

De boerderij heeft sinds een aantal jaren de bestemming ‘Maatschappelijk Zorgboerderij’ met een dubbelbestemming gedeeltelijk Archeologie 3 en gedeeltelijk Archeologie 4 en een bouwaanduiding: specifieke bouwaanduiding cultuur historisch waardevolle bebouwing.
Dat houdt in dat er een dagbesteding voor 15 tot 25 hulpbehoevende mensen mag plaatsvinden en dat er 12 zorgappartementen gerealiseerd mogen worden in het achterhuis. Tevens zijn de vergunde 20 camperplaatsen inmiddels gerealiseerd.

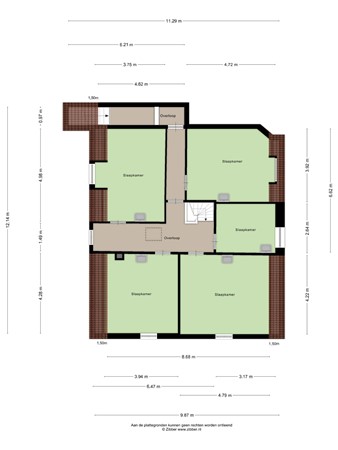
De woonboerderij heeft vele authentieke details en biedt diverse mogelijkheden. De bebouwing bestaat uit een karakteristiek, royaal woonhuis met 5 slaapkamers en 2 badkamers, met in het achterhuis de voormalige deel, waar de 12 zorgappartementen gerealiseerd kunnen worden.

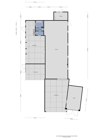
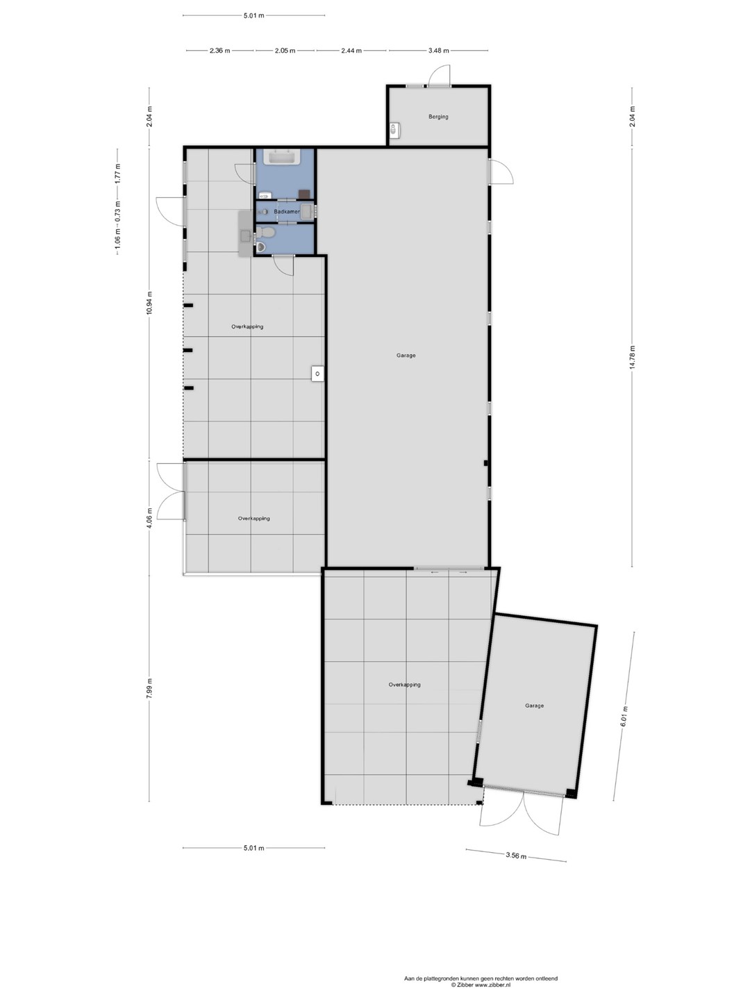
Verder staat er nog een groot bijgebouw van ongeveer 280 m² waar de dagbesteding in gerealiseerd kan worden, voldoende parkeergelegenheid op eigen terrein, een aantal bergingen en paardenstallen voor de te houden paarden.

Aan de achterzijde ligt de, met groen omzoomde, kleinschalige camperplaats, ingericht met een toiletgebouw, een gezellig, overdekt en volledig af te sluiten terras met doucheruimte en een vijver.

De vergunning is aanwezig voor het realiseren van 12 woon-/zorgeenheden, dagbesteding voor 15 tot 25 cliënten, 20 camperplaatsen en 14 paarden, die gehouden kunnen worden in combinatie met de zorg: kortom een schitterende plek voor mensen die zorg een warm hart toedragen.

Het object:
Als u via de ruime inrit het terrein oprijdt, ziet u aan de rechter zijde de grote tuin met een vijver en aan de linker zijde de parkeergelegenheid.

Kom binnen in de woonboerderij
Via de voordeur betreedt u de hal van het karakteristieke pand (bouwjaar 1923), met meterkast. De hal biedt toegang tot de beide woonkamers, het kantoor en de ruime voorraadkelder. Vanuit de woonkamer met schouw, balkenplafond en fraaie parketvloer, kunt u optimaal genieten van de tuin en het uitzicht door de raampartijen. Het kantoor is tevens geschikt voor andere doeleinden, zoals hobby- of speelkamer. Vanuit het kantoor komt u in de ruime woonkeuken. Ook hier kunt u genieten van veel lichtinval en zicht op de tuin. In de achterbouw is de volledig vernieuwde badkamer, het vernieuwde toilet en een ruimte met de witgoedaansluitingen en de c.v.-ketel.

Via de voormalige badkamer is er toegang tot een appartement met tevens een eigen ingang. Het appartement is voorzien van een eigen keukenopstelling, witgoedaansluiting, een woonkamer, doucheruimte en toilet.

De eerste verdieping is zowel via de hal als via het appartement toegankelijk. De ruime overloop biedt toegang tot 5 slaapkamers. Ga je de trap op, dan kom je op de grote overloop met 5 (slaap)kamers, allen voorzien van een eigen wastafel. De gehele eerste verdieping is voorzien van een laminaatvloer.

Het voormalige achterhuis is toegankelijk aan de achterzijde van de woonboerderij. In dit gedeelte, voorzien van een houtvergasser, is het mogelijk om de 12 zorgappartementen te realiseren. Er zijn reeds bouwtekeningen gemaakt en deze zijn in te zien. De omgevingsvergunning voor de bouw/verbouw is door de gemeente Land van Cuijk afgegeven.

De tuin
Het buitenterrein rondom de woonboerderij is voorzien van een functionele, volledig beklinkerde erfverharding. De tuin is aangelegd met gazon, bomen, hagen en een vijverpartij.

Verder staat er een voormalige varkensstal op het terrein. Er is een omgevingsvergunning aanwezig om deze stal te verbouwen naar een ruimte voor dagbesteding voor maximaal 25 personen.
Daarnaast is er een werkplaats/opslagruimte aanwezig met daarin 7 paardenboxen.

De camperplaats
De camperplaats biedt toegang voor 20 campers. Er is een toiletvoorziening en gezellig overdekt en geheel af te sluiten terras met douchegelegenheid en een visvijver.

Algemeen:
Het bouwjaar van de woonboerderij is 1923.
Er liggen 44 zonnepanelen op het dak.
De woonboerderij is voorzien van thermopane beglazing.
De locatie is 1.63.76 hectare.
Voor serieuze kandidaten zijn de cijfers in te zien.

Situering:
De woonboerderij staat in het buitengebied van Vortum-Mullem, een gezellig dorp gelegen tussen Boxmeer en Vierlingsbeek. Er is een basisschool in het dorp en voor de voorzieningen bent u aangewezen op Boxmeer, Overloon of Vierlingsbeek. Zowel in Boxmeer als Vierlingsbeek is een treinstation (traject Nijmegen-Roermond). In beide dorpen is ook een op-/afrit van de A73.

Kortom een unieke locatie met voldoende ruimte om wonen in het buitengebied, recreëren en zorg (zowel appartementen als dagbesteding) te combineren, met de uitdaging om de zorgactiviteit nog te realiseren!

Kaart

Kenmerken

Overdracht

Referentienummer
00049
Prijs
Prijs op aanvraag
Inrichting
Niet gestoffeerd
Inrichting
Niet gemeubileerd
Status
Verkocht onder voorbehoud
Aanvaarding
In overleg
Aangeboden sinds
Maandag 8 december 2025
Laatste wijziging
Dinsdag 30 december 2025

Bouw

Type object
Maatschappelijk vastgoed, Zorginstelling
Soort bouw
Bestaande bouw
Bouwperiode
1923

Oppervlaktes en inhoud

Perceeloppervlakte
16.376 m²
VVO
240 m²

Locatie

Ligging
Aan rustige weg
Buiten bebouwde kom
Open ligging
Vrij uitzicht
Lokale voorzieningen
Winkel op 5000 meter of meer
Bereikbaarheid
Treinstation op 5000 meter of meer
Afrit van de snelweg op 5000 meter of meer

Energieverbruik

Energielabel
D

Kadastrale gegevens

Kadastrale aanduiding
Boxmeer V 313
Perceeloppervlakte
16.376 m²
Omvang
Geheel perceel