Verhuurd:Lange Beijerd 14, 5431 SJ Cuijk - Foto
Verhuurd
+15

Lange Beijerd 14 5431 SJ Cuijk

  • Bedrijfshal
  • 1.825 m² perceeloppervlakte
  • 635 m² vloeroppervlakte

Beschrijving

Te huur aangeboden:
Gerenoveerde bedrijfsunit gelegen op het bedrijventerrein "de Beijerd en 't Riet" te Cuijk in een bedrijvencomplex: Lange Beijerd nr. 14:
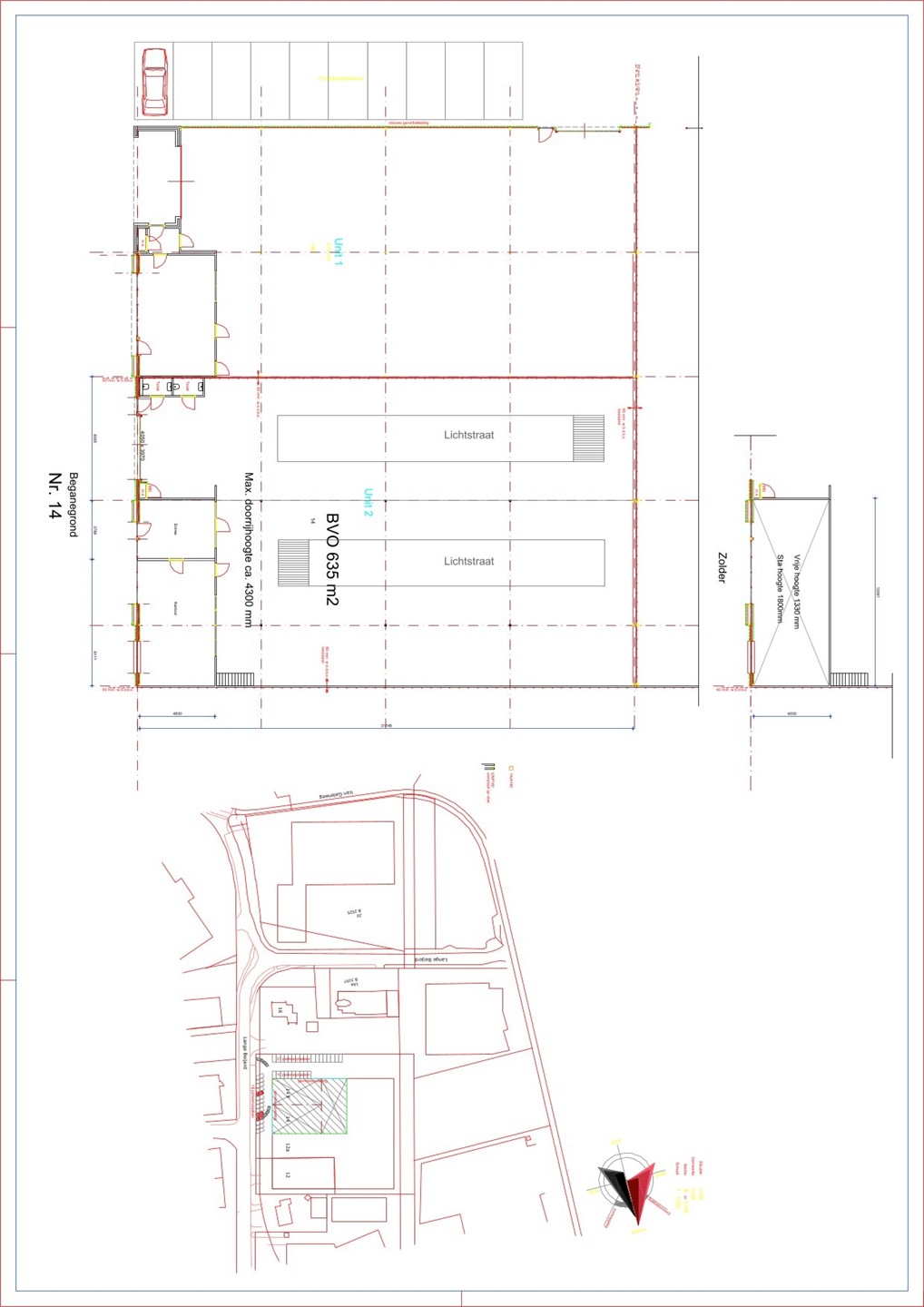
1x Multifunctionele bedrijfsruimte, gelegen aan de doorgaande weg, grootte ca 635 m2, (afmeting 19.85 x 32 meter), met inpandige kantoorruimte van ca. 60 m2.

Vrije hoogte 4.3 meter.
De ruimte is voorzien van een overheaddeur en heeft 2 toegangsdeuren.
Er is voldoende parkeergelegenheid aanwezig op het volledig verharde buitenterrein.

Voorzieningen
-1x overheaddeur afmeting b x h 4.0 x 3.95 meter;
-Toiletten;
-Eigen verdeelkast met 3-fasen krachtstroom;
-Verwarmingsinstallatie (infrarood, gasgestookt en voor kantoor CV-ketel);
-Airco installatie op kantoor;
-Verlichting;
-Brandslanghaspel;
-Kantoren voorzien van systeemplafond met eigen ingang. Afmeting 4.8 x 3.7 meter en 4.8 x 8.1 meter.

De huurder dient de contracten voor levering van gas, water en elektra zelf af te sluiten met de leveranciers.

Er zijn geen servicekosten.

Huurtermijn: 5 jaar met 5 optiejaren. Afwijkende termijnen bespreekbaar.
Huurprijs: € 45.000,-- per jaar excl. de geldende BTW.
Betaling: Per maand, te voldoen voor de 1e van de maand.
Zekerheid: Een bankgarantie of betaling van drie maanden huur te vermeerderen met geldende BTW.
Beschikbaarheid: Per direct.
Huurindex: De huurprijs wordt jaarlijks verhoogd, voor het eerst 1 jaar na de huuringangsdatum.

De verhoging is op basis van de consumentenprijsindex (CPI), reeks CPI "Alle huishoudens" (2015 = 100), zoals wordt gepubliceerd door het Centraal Bureau voor de Statistiek (CBS).

Huurovereenkomst:
De huurovereenkomst zal zijn gebaseerd op het model zoals is vastgesteld door de Raad voor Onroerende Zaken (ROZ) 2025, inclusief de algemene bepalingen en bijzondere bepalingen.

Industrieterrein "De Beijerd en 't Riet" ligt op een goed ontsloten locatie, op ca 2 km rijden van de A73, richting Nijmegen en richting Venlo/Roermond, met afslag naar de A77 en de A74. Het trein- en busstation is gelegen op ca. 600 meter afstand van het pand.

Kaart

Kenmerken

Overdracht

Referentienummer
00045
Huurprijs
€ 45.000,- per jaar
Borg
€ 3.750,-
Status
Verhuurd
Aanvaarding
Direct
Aangeboden sinds
Donderdag 30 oktober 2025
Laatste wijziging
Dinsdag 11 november 2025

Bouw

Type object
Bedrijfshal
Soort bouw
Bestaande bouw

Oppervlaktes en inhoud

Perceeloppervlakte
1.825 m²
VVO
575 m²
Kantoor oppervlakte
60 m²
Totale verhuurbare vloeroppervlakte
635 m²
Vrije hoogte
4,3 m.

Locatie

Bereikbaarheid
Bushalte op 500 meter tot 1000 meter
Treinstation op 500 meter tot 1000 meter
Afrit van de snelweg op 1500 meter tot 2000 meter

Uitrusting

Aantal parkeerplaatsen
10
Uitrusting
Betonvloer
Krachtstroom
Lichtstraten
Overheaddeuren
Toilet
Heeft een kantoor
Ja

Kadastrale gegevens

Kadastrale aanduiding
Cuijk B 3584
Perceeloppervlakte
1.825 m²